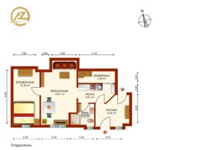
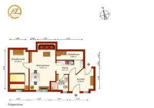
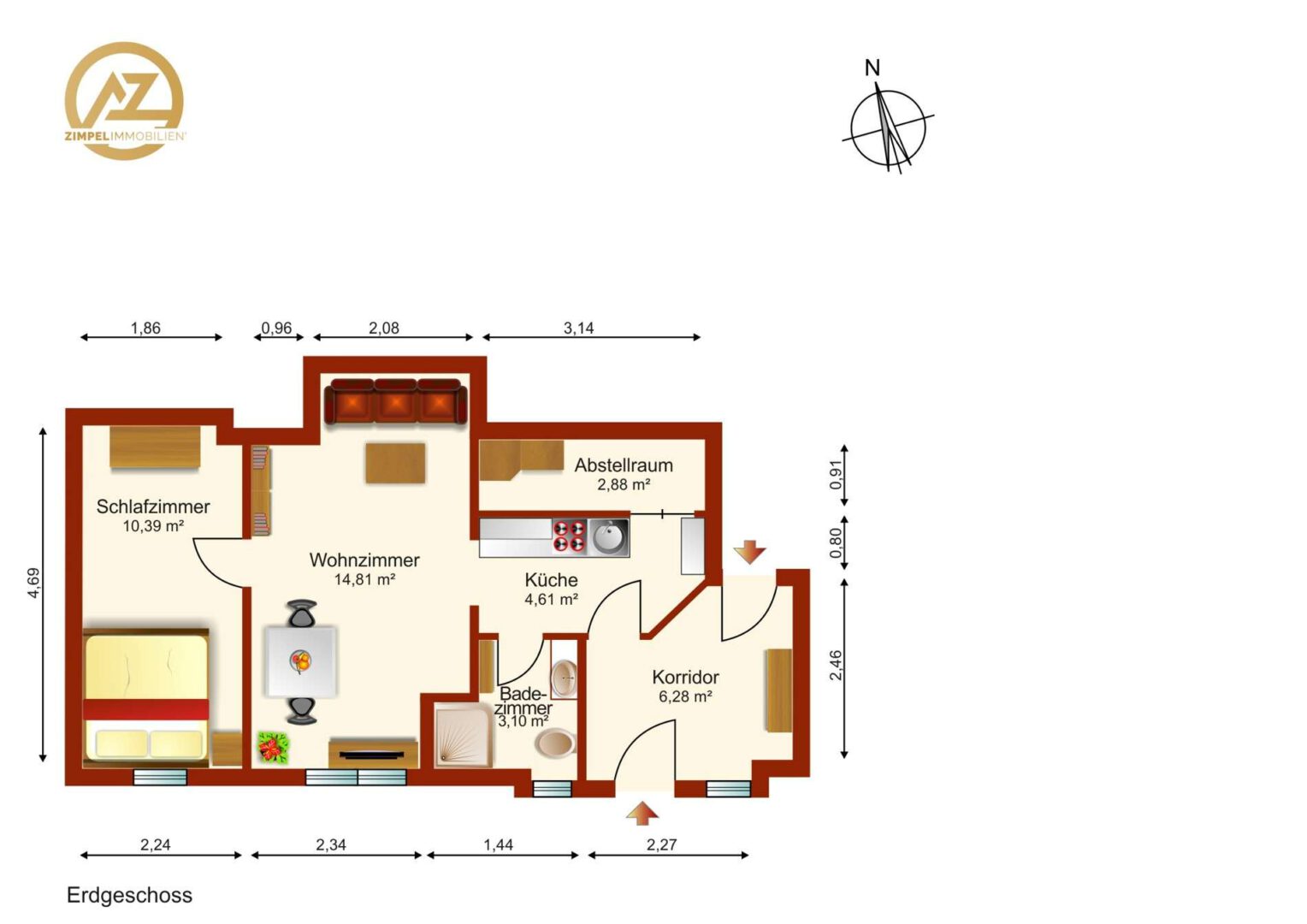
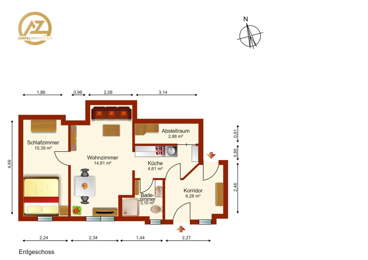
Dieses attraktive Immobilienangebot umfasst zwei gepflegte Gebäude aus ca. 1935 mit einer vermietbaren Fläche von insgesamt ca. 300 m² sowie zusätzlichen ca. 60 m² Lagerfläche. Die Immobilie bietet eine solide Investitionsmöglichkeit mit Potenzial zur flexiblen Nutzung. Im Vorderhaus befinden sich drei Wohneinheiten. Im Erdgeschoss steht eine ca. 36 m² große Zweiraumwohnung derzeit zur Neuvermietung bereit. Ebenfalls im Erdgeschoss liegt eine moderne, ca. 90 m² große Dreiraumwohnung, die bereits vermietet ist. Beide Wohnungen wurden in den letzten Jahren umfassend modernisiert. Das Obergeschoss beherbergt eine weitere Dreiraumwohnung mit ca. 85 m² Wohnfläche, die ebenfalls vermietet ist.
Das Hinterhaus wurde bislang als Büro- und Lagerfläche genutzt und bietet ebenfalls attraktive Möglichkeiten. Hier befindet sich ein ca. 80 m² großes Büro, das alternativ auch als Dreiraumwohnung vermietet werden kann. Es verfügt über eine Küche, ein Badezimmer und ein separates Gäste-WC. Im Untergeschoss sind ein zusätzlicher kleiner Büroraum, eine Toilette sowie zwei großzügige Lagerräume vorhanden. Die gesamte Heizungsanlage wurde im Jahr 2024 erneuert.
Über die Jahre hinweg wurden kontinuierlich Modernisierungsmaßnahmen durchgeführt, sodass sich beide Gebäude in einem guten und gepflegten Zustand befinden. Die Lage der Immobilie bietet zudem eine solide Nachfrage nach Wohn- und Gewerberaum, was langfristig stabile Mieteinnahmen sichert. Durch die flexible Nutzbarkeit der Einheiten besteht für Kapitalanleger ein attraktives Potenzial zur Optimierung der Rendite.
Bei vollständiger Vermietung beträgt die monatliche Soll-Kaltmiete mindestens 1.800 €, mit weiterem Steigerungspotenzial je nach Nutzung der Flächen. Dank der vielseitigen Nutzungsmöglichkeiten – ob als Wohn- und Geschäftshaus oder reine Wohnimmobilie – bietet dieses Objekt eine lohnende Investition. Eine solide Kapitalanlage mit attraktiven Renditechancen und langfristigem Wertsteigerungspotenzial.
