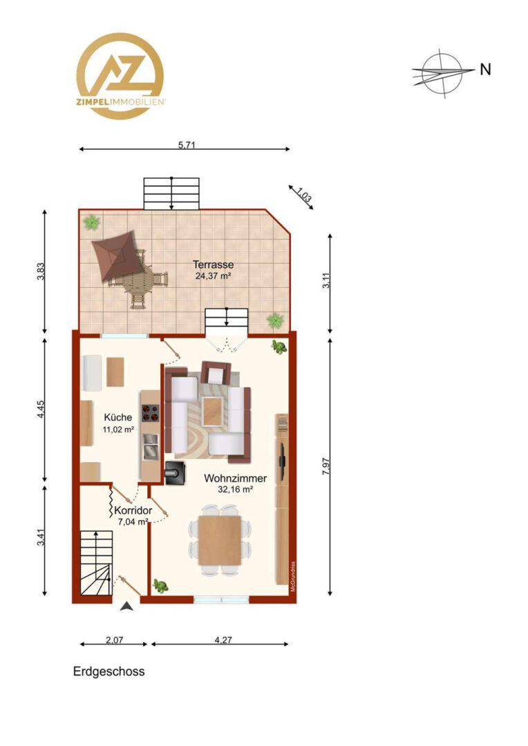
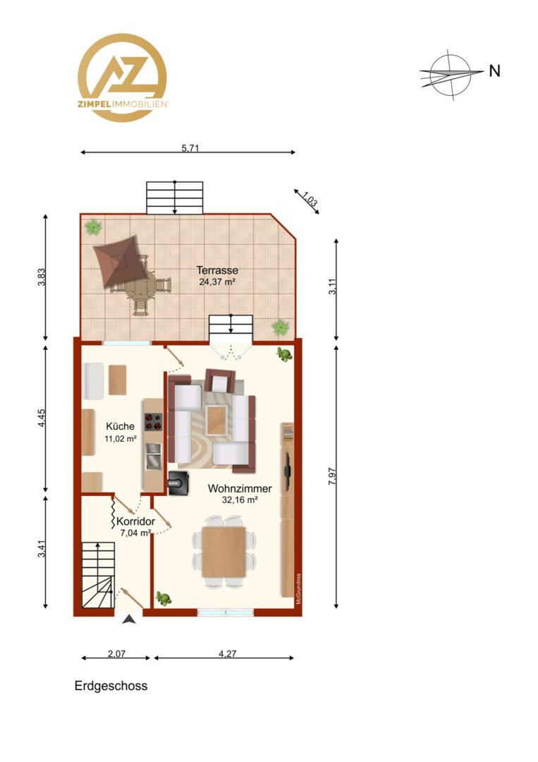
Diese im Jahr ca. 1935 erbaute Doppelhaushälfte überzeugt nicht nur durch ihren gepflegten Zustand und den liebevoll angelegten Garten, sondern auch durch eine sehr angenehme Wohnlage. Auf rund 100 Quadratmetern Wohnfläche bietet das Haus viel Raum für individuelle Wohnideen. Das großzügige 650 Quadratmeter große Grundstück lädt zum Entspannen, Gärtnern und Genießen ein – die nach Westen ausgerichtete, rund 25 Quadratmeter große und überdachte Terrasse ist der perfekte Ort, um den Feierabend ausklingen zu lassen.
Im Erdgeschoss befinden sich die Küche, das Wohnzimmer mit Kaminanschluss und großem Essbereich sowie das Treppenhaus. Vom Wohnzimmer aus gelangt man direkt auf die Terrasse und in den wunderschönen Garten. Es befindet sich übrigens auch im Treppenbereich zum Keller im Erdgeschoss ein separates WC. Im Dachgeschoss erwarten Sie zwei gemütliche Schlafzimmer und ein helles Badezimmer.
Der voll unterkellerte Bereich bietet zusätzlichen Nutzraum und vielfältige Möglichkeiten: Hier befinden sich ein WC, ein Vorratsraum, eine Waschküche, ein Waschraum mit Dusche sowie eine Hobby-Werkstatt. Von dort aus gelangt man in die große Garage, die wiederum einen direkten Zugang in den Garten bietet – ideal für Gartenliebhaber oder Handwerker.
Das Haus wurde laufend gepflegt und modernisiert: Die Heizungsanlage wurde 2021 erneuert, die Fenster im Jahr 2014, und auch im Innenbereich fanden um das Jahr 2000 verschiedene Modernisierungen statt. Insgesamt präsentiert sich die Immobilie in einem soliden, durchschnittlich guten Zustand – perfekt für alle, die eine charmante Doppelhaushälfte mit Potenzial suchen und eigene Gestaltungsideen umsetzen möchten.
Wenn Sie auf der Suche nach einem gemütlichen Zuhause in Magdeburg-Reform sind, das Platz für Familie, Hobby und Entfaltung bietet, könnte dieses Haus genau das Richtige für Sie sein.
